Click the OWL logo to go back to portfolio
Click on images below then < & > for more pictures
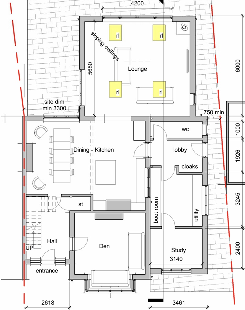
(1769) Semi supersized – Should we Move the Staircase?
Complex Family Dynamics accommodated.
Starting with an Enhanced Permitted Development rear extension
Later this was moved away from the party-wall boundary
A two-storey side extension accommodated an extra bedroom, house bathroom and an ensuite for the master bedroom
In the end the staircase was not moved…