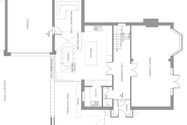
2032 Garage Conversion

Click the OWL logo to go back to portfolio    < & > for more pictures